Exceptional three bedroom semi-detached family home, situated in the well-regarded Sydney area of Crewe. This home offers three well proportioned bedrooms, driveway parking with garage, front and rear gardens, and is presented to a high standard. Perfectly suited to a professional couple or family unit. The accommodation briefly comprises:
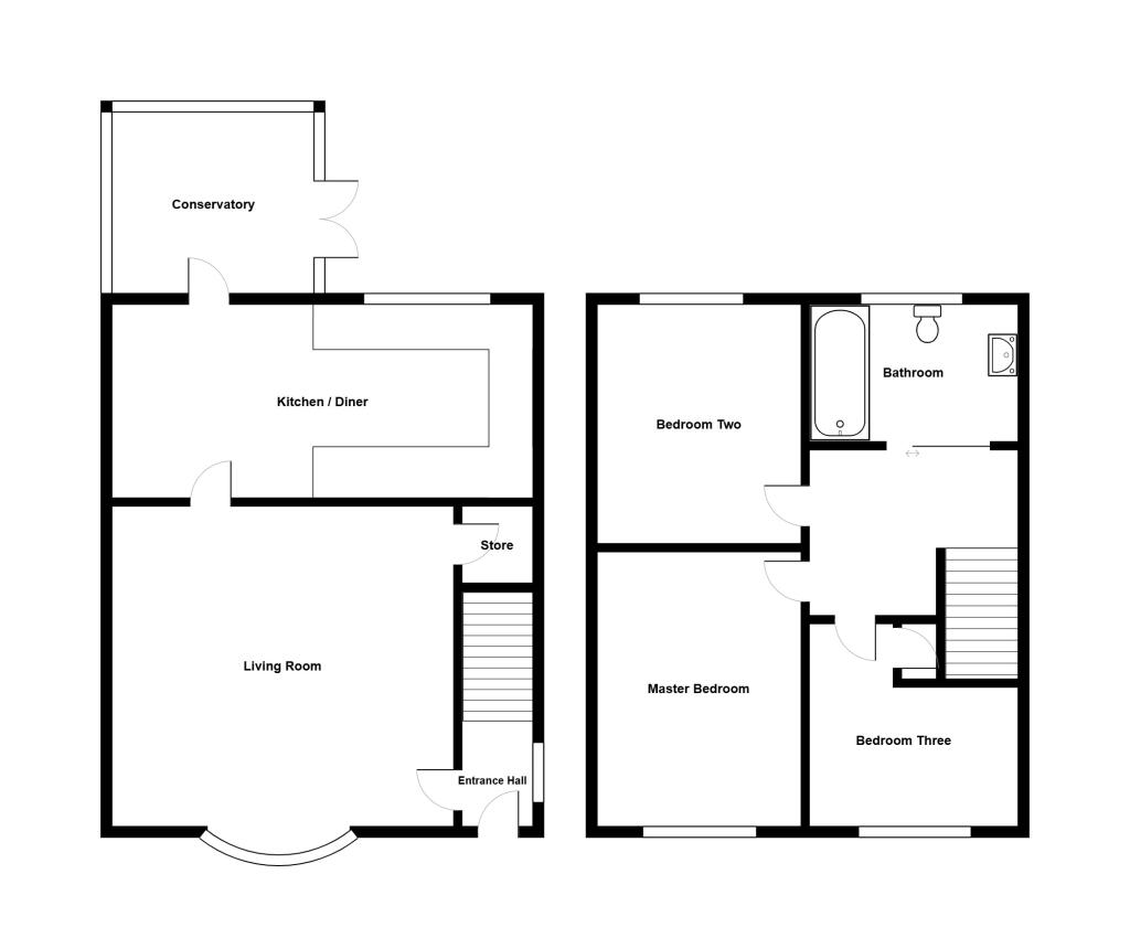
ENTRANCE HALL Greeted with grey laminate flooring and neutrally decorated walls. Access to the living room and stairs to first floor.
LIVING ROOM Lovely bright and spacious living room with newly carpeted flooring and walls painted in Egyptian cotton. Bow window to front aspect along with an internal door into the kitchen/diner.
STORE Present under the stairs, providing a suitable storage space.
KITCHEN/DINER Great sized kitchen diner with ample room for a table and chairs. Tiled flooring and mostly painted walls, with the splash-back tiled in multicolour. Wall and base units present in wood effect. Appliances include an oven, hob, and cooker hood. Access into the conservatory.
CONSERVATORY Great multi-use reception room. Containing tiled flooring and french doors into the garden.
STAIRS Carpeted staircase rising to the first floor.
BATHROOM Lovely modern bathroom containing a bathtub with overhead shower, W/C and wash basin. Vinyl flooring in herringbone pattern, and fully tiled walls.
BEDROOM TWO Decent double bedroom with carpeted flooring and neutrally decorated walls. Window to rear aspect.
MASTER BEDROOM Excellent double bedroom with carpeted flooring and neutrally decorated walls. Window to front aspect.
BEDROOM THREE Good single bedroom with carpeted flooring and neutrally decorated walls. Built-in storage available which is housing the boiler. Window to front aspect.
GARDEN Fairly low maintenance rear garden containing mostly lawn and decorative stones. Access into the garage via the side door.
GARAGE Single detached garage with side door access, or via the up-and-over door to front aspect.
Accuracy: Whilst we endeavour to make our sales/lettings details accurate and reliable, if there is any point which is of particular importance to you, please contact the office and we will be pleased to check the information. Do so, particularly if contemplating travelling some distance to view the property. Sonic / laser Tape: All measurements have been taken using a sonic / laser tape measure and therefore, may be subject to a small margin of error. Services Not tested: The mention of any appliances and/or services within these Sales/Lettings Particulars does not imply they are in full and efficient working order. All Measurements: All Measurements are Approximate.




